Kamna s výměníkem AQUAFLAM 12, krémová, manuální regulace
Kód: FLHSF29-026Více než 97 % spokojených sousedů
Pro lepší sousedství - udržitelný e-shop
Zboží klidně vraťte
až za 100 dní
Už žádná nejistota s případnou reklamací
Související produkty
Detailní popis produktu
Krbová kamna s výměníkem jsou ideální volbou pro efektivní vytápění domova. Kombinují sálavé teplo z krbu s rozvodem tepla do dalších místností pomocí teplovodního systému.
Tato kamna nelze provozovat bez připojení k radiátorům nebo podlahovému topení. Teplovodní výměník slouží k ohřevu vody, která následně cirkuluje v topném systému. Pro zajištění správné funkce a bezpečnosti musí být kamna vždy napojena na topnou soustavu.
- Ovládání externího přívodu vzduchu - 120 mm
- Sekundární spalování / terciární přívod vzduchu
- Dvojitý oplach skla předehřátým sekundárním vzduchem
- 3 bezpečnostní prvky
- Přípojky vody na obou stranách
- Bez šamotová technologie - díky absenci šamotové vyzdívky dochází k plošnější předávce tepla do výměníku a zvýšení efektivity ohřevu vody.
Stavíte nový nízkoenergetický dům? Rekonstruujete a zvyšujete podíl izolace pro váš byt?
V tom případě jsou pro vás tato kamna s externím přívodem vzduchu ideální volbou! Díky možnosti přívodu vzduchu z venkovních prostor nedochází ke spalování již ohřátého vzduchu z místnosti a efektivita spalování opět roste. Zároveň vám kamna nebudou brát drahocenný vzduch v místnosti a vy tím pádem nebudete muset tak často větrat.

Manuální regulace hoření
Přívod vzduchu se ovládá ručně pomocí táhla.
Hlavní přínos
- Fungování bez elektrické energie
- Ovládání pomocí táhla
- Pro příznivce klasického stylu
- Tažením k sobě se otevírá přívod vzduchu a naopak
Nedílnou součástí kamen je návod a technická dokumentace k produktu, které naleznete v souborech ke stažení.
Nenašli jste v popisku nebo parametrech vše potřebné, nebo se chcete před výběrem pro jistotu ještě poradit? Neváhejte nám zavolat na 371 655 660 nebo nám zašlete email na [email protected]. Rádi vám poradíme a zodpovíme vaše dotazy.
PŘIPOJENÍ KRBOVÝCH KAMEN KE KOMÍNU
Kamna se ke komínu připojují pomocí kouřovodů. Pro výběr vhodných dílů je třeba znát umístění hrdla kouřovodu na kamnech a umístění vstupu do komínu v místnosti. Od těchto údajů se odvíjí, jaké díly a v jakých délkách použijete. Nejčastěji používanými díly jsou kouřové roury a kolena. V případě, že průměr hrdla na kamnech neodpovídá průměru vstupu do komína, můžete použít redukce. Kouřové redukce využijete pro regulací průměru na kamnech, komínovou redukci pak pro regulaci v místě připojení na komín. Dbejte na to, aby se průměr kouřovodu ve směru toku spalin nezužoval.
Vhodnými díly pro zakončení kouřovodu a jejich připojení na komín jsou zděř nebo přechodku do komína. Místo připojení kouřovodu do komína pak z estetických důvodů můžete zakrýt růžicí. Pro správnou funkci kouřovodu je nutné spalinový tok průběžně čistit, a to pomocí rourových kartáčů.
RYCHLÝ VÝBĚR KOUŘOVODŮ PRO TATO KAMNA (160 mm)
PŘÍSLUŠENSTVÍ, KTERÉ SE HODÍ
Kromě kouřovodů, jež jsou pro připojení kamen nezbytné, existuje celá řada příslušenství, které vám topení, údržbu a posezení u kamen zpříjemní. Jak už název napovídá, vysavače studeného popela využijete pro odsátí a vyčistění kamen od popela. Kroky při zatápění si ušetříte, pokud si dřevo k přikládání uskladníte hned vedle kamen v krbovém zásobníku nebo krbovém koši. Během samotného přikládání jistě použijete krbové nářadí.
Kompletní nabídka krbového příslušenství
Doplňkové parametry
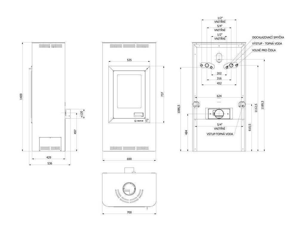
| Kategorie: | Krbová kamna s teplovodním výměníkem |
|---|---|
| Záruka: | 5 let |
| EAN: | 8594155833221 |
| Typ kamen: | Kamna s výměníkem |
| Barva: | krémová |
| Šířka: | 70 cm |
| Výška: | 141 cm |
| Hloubka: | 54 cm |
| ? Parametr pro filtrování: Šířka: | 70 - 79 cm |
| ? Parametr pro filtrování: Výška: | 140 - 149 cm |
| ? Parametr pro filtrování: Hloubka: | 50 - 59 cm |
| ? Celkový jmenovitý výkon: | 12 kW |
| ? Celkový výkon (skupina): | 12 - 18 kW (výměník) |
| ? Jmenovitý výkon do prostoru: | 2 kW |
| Výměník: | Ano |
| Výkon výměníku (skupina): | 9 - 10 kW |
| ? Maximální výkon do topné soustavy (výměník): | 12 kW |
| ? Jmenovitý výkon do topné soustavy (výměník): | 10 kW |
| ? Rozsah výkonů výměníku: | 8 - 12 kW |
| ? Vytápěcí schopnost (orientační): | 160 - 320 m3 |
| ? Kouřovod - vývod: | horní |
| Kouřovod - průměr: | 160 mm |
| Palivo: | dřevěné brikety, kusové dřevo |
| Spotřeba paliva: | 3,62 kg/h |
| ? Externí přívod vzduchu: | Ano |
| ? Terciární spalování: | Ano |
| Účinnost: | 79.1 % |
| Materiál: | ocelový plech 4 a 6 mm |
| Maximální délka polena: | 35 cm |
| Třída energetické účinnosti: | A |
| Rozměry topeniště (Š x H x V): | 400 x 340 x 415 mm |
| Vychlazovací smyčka: | Ano |
| Elektronická regulace: | Ne |
| Emise CO (při 13% O2): | 0.1 |
| Komínová klapka: | Ano |
| Norma: | EN 13240, BlmSchV - Stufe 2, Ekodesign |
| Objem tepelného výměníku: | 27 l |
| Provozní tah: | 12 Pa |
| Průměr externího přívodu vzduchu: | 120 mm |
| Průměrná teplota spalin: | 247 °C |
| Přepravní rozměry (paleta): | 850 x 830 mm |
| Přikládání: | přední |
| Rozměr skla (Š x V): | 340 x 460 mm |
| Plášť kamen: | ocelový plech |
Buďte první, kdo napíše příspěvek k této položce.
Buďte první, kdo napíše příspěvek k této položce.
Cílem společnosti AQUAFLAM, která nabízí kamna s výměníkem je vytvářet takové produktové portfolio, které svou kvalitou, cenou a komplexností uspokojí jak profesionály působící v tomto oboru, tak i naše koncové zákazníky. HS Flamingo je silná a moderní společnost která díky zkušenostem a postavení na českém trhu nabízí mnoho nadstandardních služeb jak pro velkoobchodní odběratele, tak svým koncovým zákazníkům.

